1215 Canyon Creek Circle, College Station, TX 77840 (MLS # 26004420)
|
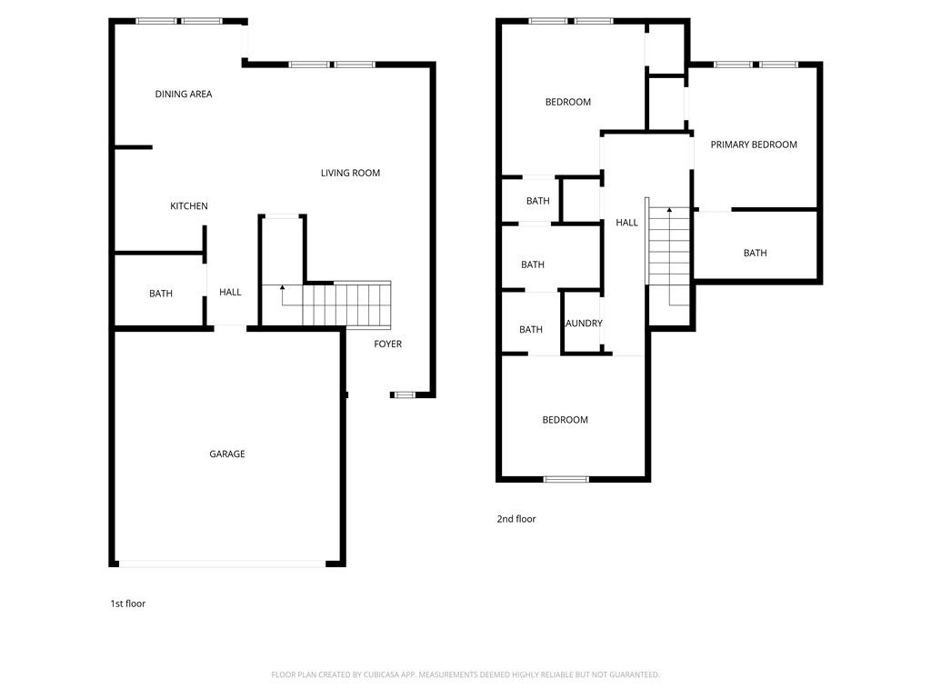
Charming 3-bedroom, 2.5-bath townhome located in the desirable Canyon Creek Townhomes community! This gated community offers a community pool and visitor parking. The functional floor plan features all bedrooms and the laundry room upstairs, with a half bath located downstairs for guests. The kitchen includes an eating bar and opens to a dedicated dining area"”perfect for everyday living or entertaining. Brand new Samsung stainless steel kitchen appliance package just installed, including a microwave, range, refrigerator, and dishwasher! Tile flooring in all bathrooms adds durability and style. Enjoy the convenience of an attached 2-car garage and a bus stop on Luther with direct access to Texas A&M. Just a couple of miles from the heart of campus, this property is ideal for students, game day stays, or investors!
| DAYS ON MARKET | 46 | LAST UPDATED | 4/10/2026 |
|---|---|---|---|
| TRACT | T.C.C. | YEAR BUILT | 2002 |
| COMMUNITY | C08 | GARAGE SPACES | 2.0 |
| COUNTY | Brazos | STATUS | Active |
| PROPERTY TYPE(S) | Condo/Townhouse/Co-Op |
| ADDITIONAL DETAILS | |
| AIR | Ceiling Fan(s), Central Air, Electric |
|---|---|
| AIR CONDITIONING | Yes |
| AMENITIES | Trash |
| APPLIANCES | Electric Water Heater |
| AREA | C08 |
| GARAGE | Yes |
| HEAT | Central, Electric |
| HOA DUES | Monthly |
| INTERIOR | Ceiling Fan(s) |
| LOT | 2627 sq ft |
| PARKING | Attached, Garage |
| POOL DESCRIPTION | Community |
| SEWER | Public Sewer |
| STORIES | 2 |
| STYLE | Traditional |
| SUBDIVISION | T.C.C. |
| UTILITIES | Sewer Available, Water Available |
| WATER | Public |
MORTGAGE CALCULATOR
TOTAL MONTHLY PAYMENT
0
P
I
*Estimate only
| SATELLITE VIEW |
We respect your online privacy and will never spam you. By submitting this form with your telephone number
you are consenting for Carla
Henderson to contact you even if your name is on a Federal or State
"Do not call List".
Listing provided by Kendra Hudson, Hudson Team, The
Listing information provided by Bryan-College Station Regional Association of Realtors - All rights reserved. IDX information is provided exclusively for consumer's personal, non-commercial use, that it not be used for any purpose other than to identify prospective properties consumers may be interested in purchasing. Data is deemed reliable but is not guaranteed accurate by the MLS.
Consumer Protection Notice
IABS Form
This IDX solution is (c) Diverse Solutions 2026.

