4739 Coral River Road, College Station, TX 77845 (MLS # 26003123)
|
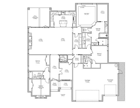
Welcome to Reece Homes "The Addison" 4 bedroom-3.5 bath floorplan in Greens Prairie Reserve! The kitchen features a massive island, an abundance of cabinet and counter space, a walk-in butler's style pantry, and stainless-steel appliances including; a built-in oven, microwave drawer, and more! Other features include quartz countertops throughout and vinyl wood flooring. Having a large master suite with a deep tub, walk-in shower, and closet with built-in shelves offers a sweet escape! Off the main living area, there is a laundry and mud room with 3 additional spacious bedrooms. Covered back patio and lots of open space in the garage is calling your name! This subdivision offers a wonderful space for relaxation and activity with miles of walking trails and ponds near many shops and restaurants! (Photos are of the actual house in the actual stage of construction)
| DAYS ON MARKET | 3 | LAST UPDATED | 3/19/2026 |
|---|---|---|---|
| TRACT | Greens Prairie Reserve | YEAR BUILT | 2026 |
| COMMUNITY | C18 | GARAGE SPACES | 3.0 |
| COUNTY | Brazos | STATUS | Active |
| PROPERTY TYPE(S) | Single Family |
| ADDITIONAL DETAILS | |
| AIR | Ceiling Fan(s), Central Air, Electric |
|---|---|
| AIR CONDITIONING | Yes |
| AMENITIES | Trash |
| APPLIANCES | Built-In Electric Oven, Cooktop, Dishwasher, Electric Oven, ENERGY STAR Qualified Appliances, Gas Water Heater, Microwave |
| AREA | C18 |
| CONSTRUCTION | Brick, Stone |
| FIREPLACE | Yes |
| GARAGE | Yes |
| HEAT | Central, Natural Gas |
| HOA DUES | 1000|Annually |
| INTERIOR | Ceiling Fan(s), Kitchen Island, Pantry |
| LOT | 10289 sq ft |
| PARKING | Attached, Garage |
| SEWER | Public Sewer |
| STORIES | 1 |
| STYLE | Traditional |
| SUBDIVISION | Greens Prairie Reserve |
| UTILITIES | Cable Available, Electricity Available, Natural Gas Available, Sewer Available, Water Available |
| WATER | Public |
MORTGAGE CALCULATOR
TOTAL MONTHLY PAYMENT
0
P
I
*Estimate only
| SATELLITE VIEW |
We respect your online privacy and will never spam you. By submitting this form with your telephone number
you are consenting for Carla
Henderson to contact you even if your name is on a Federal or State
"Do not call List".
Listing provided by Jennifer Fredericks, Inhabit Real Estate Group
Listing information provided by Bryan-College Station Regional Association of Realtors - All rights reserved. IDX information is provided exclusively for consumer's personal, non-commercial use, that it not be used for any purpose other than to identify prospective properties consumers may be interested in purchasing. Data is deemed reliable but is not guaranteed accurate by the MLS.
Consumer Protection Notice
IABS Form
This IDX solution is (c) Diverse Solutions 2026.

