2404 COLGATE Circle, College Station, TX 77840 (MLS # 26001831)
|
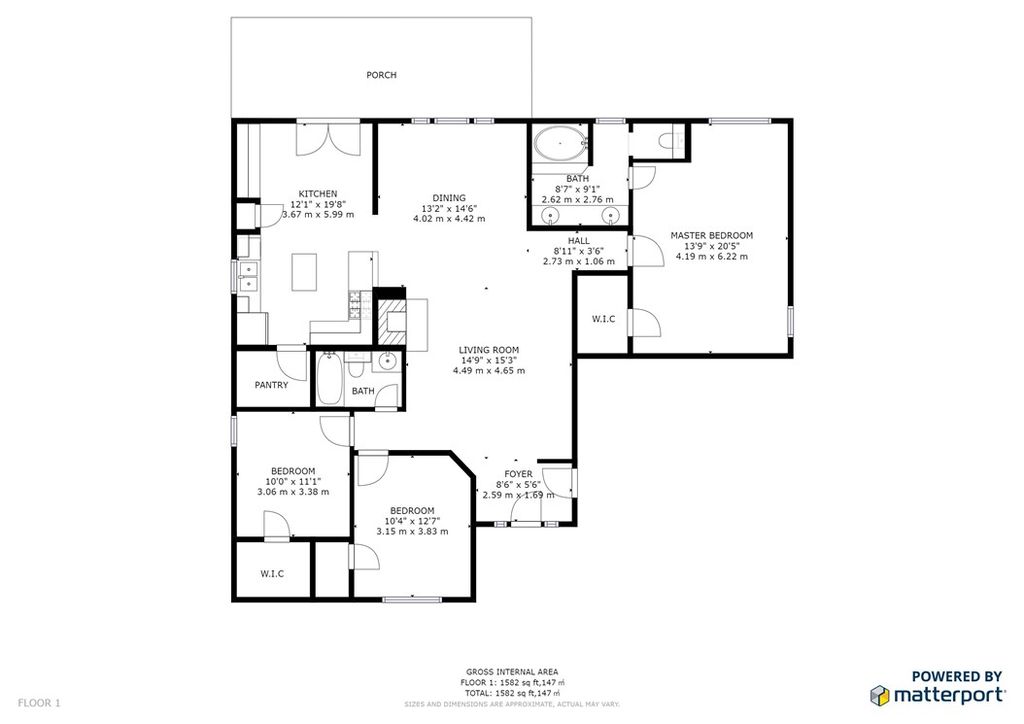
Location, price, floorplan and updates make this College Station home a smart choice for occupancy or investment! Centrally located near shopping, dining, and entertainment options. Walking distance to Texas A&M shuttle stop & to Wolf Pen amphitheater & park complex! The spacious split floor plan offers 3 bedrooms with large walk-in closets & 2 full bathrooms. The large living area offers a cozy fireplace and flows onto an inviting dining area and updated kitchen area. The island kitchen offers granite counters, a central island and a bonus desk space in the breakfast area. Stainless steel appliances include the kitchen refrigerator. French doors open to a covered deck perfect for year-round entertaining and overlooking the oversized backyard backing up to a greenbelt - no back neighbor! A two car garage completes the home. As an added bonus there is no carpet in the home - beautiful wood like flooring in all bedrooms and common areas with tile in kitchen and baths! Updates include new roof in April 2025, HVAC in 2022 and a partial fence replacement. This home is currently leased through July 5th offering immediate cash flow and availability to occupy or lease just in time for the 2026 school year!
| DAYS ON MARKET | 4 | LAST UPDATED | 2/13/2026 |
|---|---|---|---|
| TRACT | Brentwood | YEAR BUILT | 1992 |
| COMMUNITY | C05 | GARAGE SPACES | 2.0 |
| COUNTY | Brazos | STATUS | Active |
| PROPERTY TYPE(S) | Single Family |
| ADDITIONAL DETAILS | |
| AIR | Ceiling Fan(s), Central Air, Electric |
|---|---|
| AIR CONDITIONING | Yes |
| APPLIANCES | Microwave , Refrigerator |
| AREA | C05 |
| CONSTRUCTION | Brick Veneer |
| FIREPLACE | Yes |
| GARAGE | Yes |
| HEAT | Central, Natural Gas |
| INTERIOR | Ceiling Fan(s), Granite Counters, Kitchen Island |
| LOT | 0.29 acre(s) |
| PARKING | Attached, Garage, Garage Door Opener |
| SEWER | Public Sewer |
| STORIES | 1 |
| STYLE | Traditional |
| SUBDIVISION | Brentwood |
| UTILITIES | Sewer Available, Water Available |
| WATER | Public |
MORTGAGE CALCULATOR
TOTAL MONTHLY PAYMENT
0
P
I
*Estimate only
| SATELLITE VIEW |
We respect your online privacy and will never spam you. By submitting this form with your telephone number
you are consenting for Carla
Henderson to contact you even if your name is on a Federal or State
"Do not call List".
Listing provided by Brad Corrier, Keller Williams Realty B/V
Listing information provided by Bryan-College Station Regional Association of Realtors - All rights reserved. IDX information is provided exclusively for consumer's personal, non-commercial use, that it not be used for any purpose other than to identify prospective properties consumers may be interested in purchasing. Data is deemed reliable but is not guaranteed accurate by the MLS.
Consumer Protection Notice
IABS Form
This IDX solution is (c) Diverse Solutions 2026.

