992 Crossing Drive, Bryan, TX 77803 (MLS # 26001679)
|
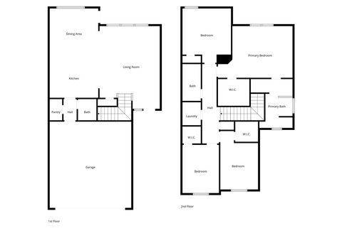
This well-designed 2-story home offers 4 beds, 2.5 baths with durable laminate flooring that spans the main level, which also includes a convenient half bath and a bright, open layout connecting the living spaces. The kitchen delivers both style and function with modern appliances, an island with an eating bar, generous cabinet storage, and a pantry to keep everything in its place. Upstairs, the primary bedroom serves as a comfortable retreat with an ensuite bath featuring dual sinks, a separate shower, and a soaking tub. 3 spacious secondary bedrooms share a full bathroom, while the centrally located laundry room adds extra convenience. Located just minutes from Blinn College, Texas A&M University, and Bryan's Historic Downtown District, this home offers easy access to shopping, dining, entertainment, and local attractions.
| DAYS ON MARKET | 1 | LAST UPDATED | 2/10/2026 |
|---|---|---|---|
| TRACT | Follett | YEAR BUILT | 2020 |
| COMMUNITY | B11 | GARAGE SPACES | 2.0 |
| COUNTY | Brazos | STATUS | Active |
| PROPERTY TYPE(S) | Single Family |
| ADDITIONAL DETAILS | |
| AIR | Ceiling Fan(s), Central Air, Electric |
|---|---|
| AIR CONDITIONING | Yes |
| APPLIANCES | Dishwasher, Disposal, Electric Range, Electric Water Heater, Microwave , Water Heater |
| AREA | B11 |
| CONSTRUCTION | Brick, HardiPlank Type |
| GARAGE | Yes |
| HEAT | Central, Electric |
| HOA DUES | 300|Annually |
| INTERIOR | Bar, Ceiling Fan(s), Dry Bar, Granite Counters |
| LOT | 5227 sq ft |
| PARKING | Attached, Garage, Garage Door Opener |
| SEWER | Public Sewer |
| STORIES | 2 |
| STYLE | Traditional |
| SUBDIVISION | Follett |
| UTILITIES | Sewer Available, Water Available |
| WATER | Public |
MORTGAGE CALCULATOR
TOTAL MONTHLY PAYMENT
0
P
I
*Estimate only
| SATELLITE VIEW |
We respect your online privacy and will never spam you. By submitting this form with your telephone number
you are consenting for Carla
Henderson to contact you even if your name is on a Federal or State
"Do not call List".
Listing provided by Kristi Fox Satsky, Century 21 Integra Unlocked
Listing information provided by Bryan-College Station Regional Association of Realtors - All rights reserved. IDX information is provided exclusively for consumer's personal, non-commercial use, that it not be used for any purpose other than to identify prospective properties consumers may be interested in purchasing. Data is deemed reliable but is not guaranteed accurate by the MLS.
Consumer Protection Notice
IABS Form
This IDX solution is (c) Diverse Solutions 2026.

