5756 Oak Hollow Circle, Bryan, TX 77808 (MLS # 25012813)
|
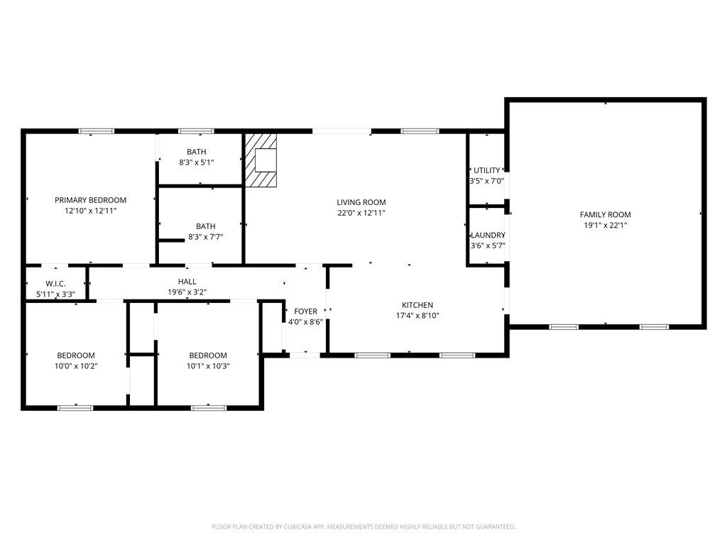
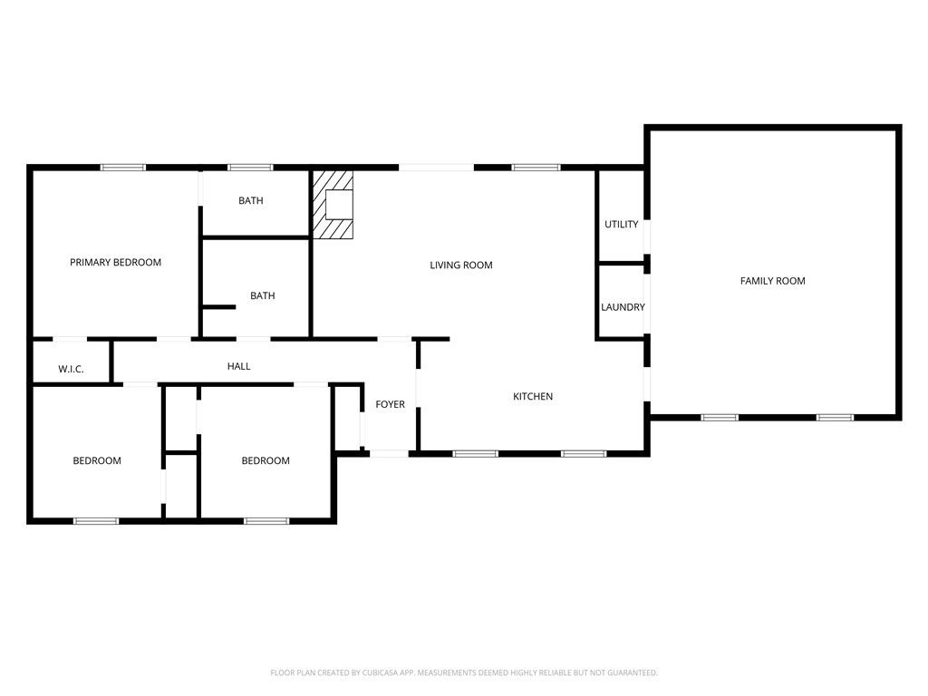
This rare listing is for a residence located on 1.9 acres with a professionally built 2400 square foot (40'x60') metal frame building, is located less than 5 minutes from the intersection of Briarcrest Drive/Highway 6 and 15 minutes from TAMU. With many possible uses this property is perfect for a hobbyist needing workspace, owner occupant with small business needs (i.e. mowing equipment, mechanic work, etc). Entire site is fenced, including front yard, making 4-H or FFA animal projects easy to manage on the site. Main residence boasts a nice size family room with corner brick wood burning fireplace. Enjoy the primary bedroom with an en-suite bath. Two guest rooms share a hall bath. The kitchen and breakfast nook lead you into a large flex/bonus space that was former the garage but converted/finished out to match the remainder of residence. Property is functional for immediate occupancy. Ready for cosmetic updates but does have a newer 30 year composition roof, newer 5 ton HVAC, and recent hardi-plank siding. Metal building has separate electric service/panel, 220 plugs, insulated interior, slab foundation. Ample concrete parking area in front of residence and under metal building overhang. An additional accessory structure is wood framed and used for storage with small attached pen area (structure can be easily removed should you desire). Back of acreage has a small intermittent weather creek bed and detention/pond area, plus mixed mature and young trees. Tour today!
| DAYS ON MARKET | 2 | LAST UPDATED | 12/10/2025 |
|---|---|---|---|
| TRACT | Oak Hollow Acres | YEAR BUILT | 1975 |
| COMMUNITY | 103 | GARAGE SPACES | 3.0 |
| COUNTY | Brazos | STATUS | Active |
| PROPERTY TYPE(S) | Single Family |
| ADDITIONAL DETAILS | |
| AIR | Ceiling Fan(s), Central Air, Electric |
|---|---|
| AIR CONDITIONING | Yes |
| APPLIANCES | Built-In Electric Oven, Cooktop, Disposal, Electric Oven, Electric Water Heater, Water Heater |
| AREA | 103 |
| CONSTRUCTION | Brick Veneer, Frame, HardiPlank Type |
| FIREPLACE | Yes |
| GARAGE | Yes |
| HEAT | Central, Electric |
| INTERIOR | Bar, Ceiling Fan(s), Dry Bar, Smart Home |
| LOT | 1.39 acre(s) |
| LOT DESCRIPTION | Corner Lot, Level, Open Lot |
| PARKING | None, Garage Door Opener |
| STORIES | 1 |
| STYLE | Ranch |
| SUBDIVISION | Oak Hollow Acres |
| UTILITIES | Electricity Available, Phone Available, Water Available |
MORTGAGE CALCULATOR
TOTAL MONTHLY PAYMENT
0
P
I
*Estimate only
| SATELLITE VIEW |
We respect your online privacy and will never spam you. By submitting this form with your telephone number
you are consenting for Carla
Henderson to contact you even if your name is on a Federal or State
"Do not call List".
Listing provided by Chad Hovde, RE/MAX 2020
Listing information provided by Bryan-College Station Regional Association of Realtors - All rights reserved. IDX information is provided exclusively for consumer's personal, non-commercial use, that it not be used for any purpose other than to identify prospective properties consumers may be interested in purchasing. Data is deemed reliable but is not guaranteed accurate by the MLS.
Consumer Protection Notice
IABS Form
This IDX solution is (c) Diverse Solutions 2025.

