3252 County Road 328, Caldwell, TX 77836 (MLS # 25010424)
|
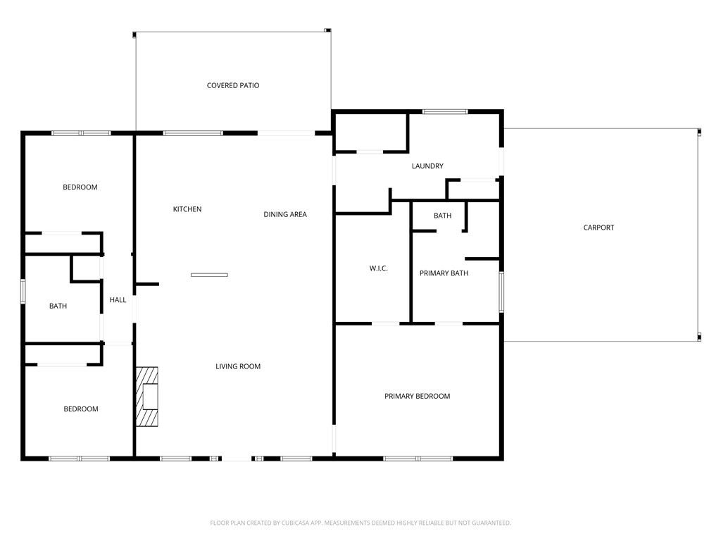
+/- 11.82 Acres with NEW CONSTRUCTION home in Caldwell, TX! 1,966 SqFt ranch style home built by Chollett Custom Builder that was carefully curated by Lacy & Co. Open-concept floor plan with Hybrid LVP flooring throughout to withstand the outdoors and country living. The living area boasts a wood-burning stone fireplace and numerous windows. Spacious chef's kitchen with stainless steel double oven, gas cook top, and large island with eating bar that includes storage cabinets. Enjoy the view from the french doors off the dining/kitchen area overlooking the covered patio & acreage. Separate dining area with decorative chandelier. Expansive mudroom with durable cement tile flooring, pantry, extra sink, bench/drop off zone & designated place for a freezer. Primary suite features a beamed ceiling, separate vanities, soaking tub and walk-in closet with built-ins. The shower has a marble mosaic floor & blue tile accent wall that compliments the matte black Delta fixtures. 2 additional bedrooms both equipped with remote controlled ceiling fans & reach-in closets. Full hall bathroom with a blue tile surround for the shower/tub combo & lots of storage. Small stock pond on site. Slightly sloped terrain creates scenic views. Ag valuation & perimeter fencing in place! Zoned for Caldwell ISD. Serviced by Bluebonnet Electric & Milano Water Supply.
DAYS ON MARKET | 1 | LAST UPDATED | 10/7/2025 |
---|---|---|---|
TRACT | Other | YEAR BUILT | 2025 |
COMMUNITY | Burleson | GARAGE SPACES | 2.0 |
COUNTY | Burleson | STATUS | Active |
PROPERTY TYPE(S) | Single Family |
ADDITIONAL DETAILS | |
AIR | Ceiling Fan(s), Central Air, Electric |
---|---|
AIR CONDITIONING | Yes |
APPLIANCES | Dishwasher, Disposal, Double Oven, Gas Range, Gas Water Heater, Microwave , Tankless Water Heater, Water Heater |
AREA | Burleson |
CONSTRUCTION | Other, Stone |
FIREPLACE | Yes |
GARAGE | Yes |
HEAT | Central, Electric |
INTERIOR | Bar, Ceiling Fan(s), Dry Bar, Granite Counters, High Ceilings, Kitchen Island |
LOT | 11.82 acre(s) |
PARKING | Attached Carport, Garage, Garage Faces Side |
STORIES | 1 |
STYLE | Farmhouse, Ranch |
SUBDIVISION | Other |
UTILITIES | Electricity Available, Water Available |
WATERFRONT DESCRIPTION | Pond |
MORTGAGE CALCULATOR
TOTAL MONTHLY PAYMENT
0
P
I
*Estimate only
SATELLITE VIEW |
We respect your online privacy and will never spam you. By submitting this form with your telephone number
you are consenting for Carla
Henderson to contact you even if your name is on a Federal or State
"Do not call List".
Listing provided by Jessica Armstrong, Armstrong Properties
Listing information provided by Bryan-College Station Regional Association of Realtors - All rights reserved. IDX information is provided exclusively for consumer's personal, non-commercial use, that it not be used for any purpose other than to identify prospective properties consumers may be interested in purchasing. Data is deemed reliable but is not guaranteed accurate by the MLS.
Consumer Protection Notice
IABS Form
This IDX solution is (c) Diverse Solutions 2025.